アクセントカラーと木の質感が落ち着くリビング
アクセントカラーと木の質感が落ち着くリビング
人気の高い青のアクセントクロスを壁に貼った、個性あるキッチン。
白と青で地中海をイメージ。
- 構造
- RC造
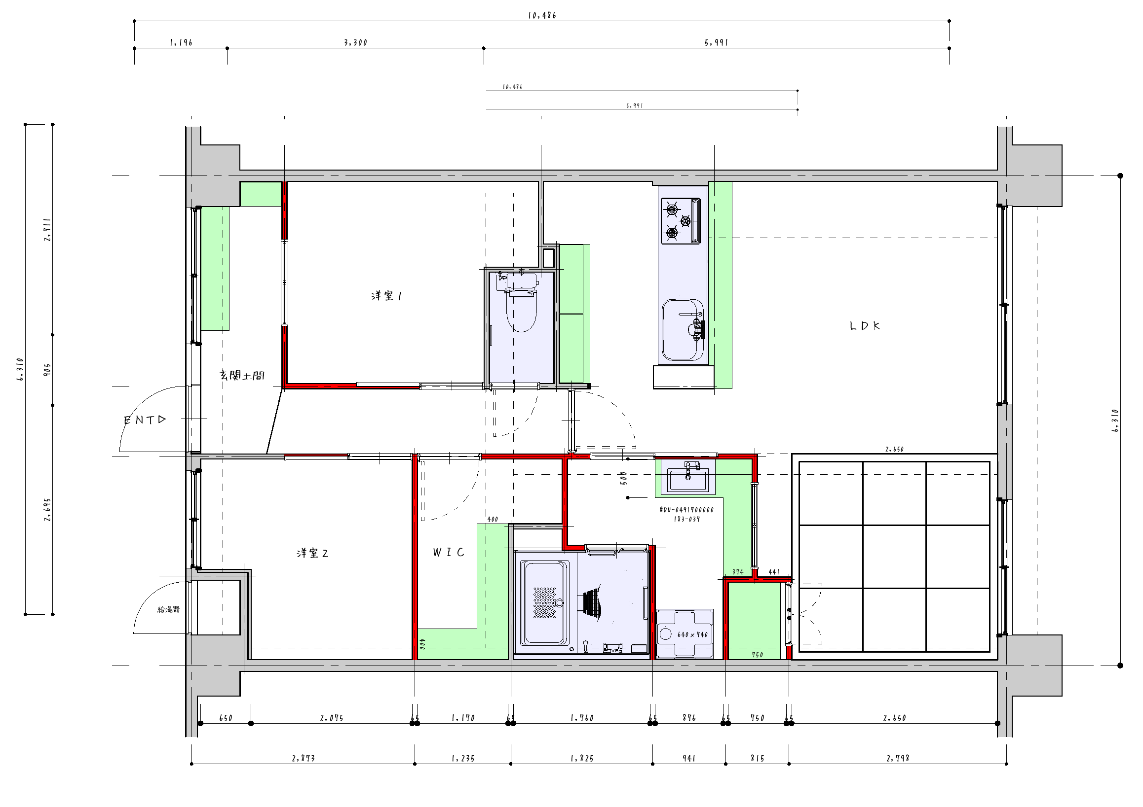
- 延床面積
- 67㎡
- 間取り
- 2LDK+WIC
- 工期
- 1ヶ月
白いタイルにグレーの目地だと少し引き締まったスタイリッシュな感じがします。
TAKUMI Co.,Ltd
2-6-34, Hammichibashi Hakata-ku,
Fukuoka-city, Fukuoka, 812-0897
Open 9:00-18:00 Holiday-every Sunday
アクセントカラーと木の質感が落ち着くリビング
人気の高い青のアクセントクロスを壁に貼った、個性あるキッチン。
白と青で地中海をイメージ。
白いタイルにグレーの目地だと少し引き締まったスタイリッシュな感じがします。