CONTACT

TAKUMI Co.,Ltd

2-6-34, Hammichibashi Hakata-ku,
Fukuoka-city, Fukuoka, 812-0897

Open 9:00-18:00 Holiday-every Sunday

Fukuoka-city

白を基調にしたシンプルなリノベーション

福岡市中央区 アクセント
白を基調にしたシンプルなリノベーション

白を基調にしたシンプルなリノベーション
キッチン・リビングは窓からの光と風を導き入れ心地よい空間。
シンプルなダウンライトで、お部屋がすっきり。

構造
RC造
延床面積
90㎡
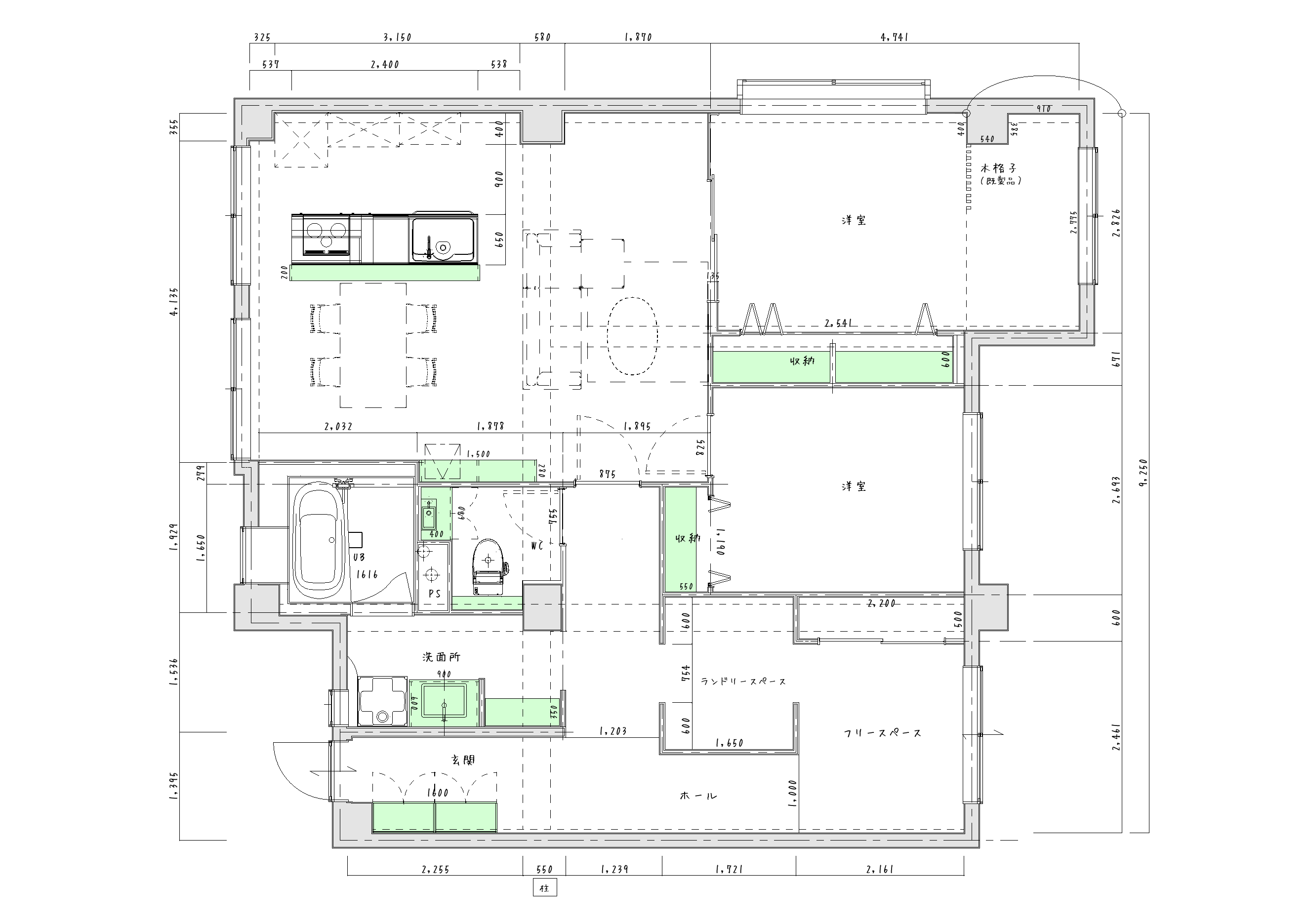
間取り
2LDK+フリースペース
工期
1.5ヶ月
ナチュラルモダン アクセント キッチン

キッチンカウンターの上にはペンダントライトを使っていますが、 このように他の照明と組み合わせるのもおすすめ。


玄関からLDKへ続く廊下には、アーチ型の開口を用意
バスルーム・洗面所の水廻りの収納には便利な可動式棚

施工事例一覧にもどる